Wir danken Familie Richter für diesen schönen Bericht:
"Vor etwa 10 Jahren ist bei uns der Traum eines Ferienhauses nördlich von Berlin entstanden. Wir wohnen in Berlin, verbringen aber fast jedes Wochenende im nördlichen Brandenburg. Nach Besichtigung mehrerer DDR-Bungalows wurde uns klar: Wir wollen bauen. 2017 konnten wir ein wunderschönes Grundstück in einem kleinen Ort in der Nähe von Fürstenberg/Havel kaufen und beauftragten einen Architekten mit der Realisierung; er hatte mehrere Ferienhäuser in der Nähe von Lychen gebaut, die uns sehr gefallen hatten.
Der Architekt entwarf uns ein schönes Haus. 2018 wurde der Antrag auf Baugenehmigung gestellt. Doch die Baukonjunktur lief auf Hochtouren, die Baugenehmigung ließ 1 ½ Jahre auf sich warten. Mehrfache Ausschreibungen der Bauleistungen erwiesen leider, dass die Baukosten völlig falsch eingeschätzt waren. Wir planten kleiner, aber auch dieses Mal ergaben die Ausschreibungen, wenn überhaupt Angebote eingingen, Preise weit jenseits des Budgets. Erschwerend kam hinzu, dass die Pandemie begonnen hatte und die Baukonjunktur z. B. bei den Holzpreisen seltsame Blüten trieb. 2022 gaben wir diesen Ansatz auf.
Wir wollten ein schönes Ferienhaus zu einem kalkulierbaren Preis innerhalb eines vernünftigen Zeitraums – also schauten wir jetzt nach Fertig- und Modulhäusern. Wir hatten im Vorfeld mit mehreren Anbietern gesprochen. Smart House hatte uns am besten gefallen. Irgendwo am Rhein haben wir uns dann ein Smart House angesehen und es für gut befunden. Hinzu kam eine emotionale Komponente: Ich lebe zwar seit mehreren Jahrzehnten in Berlin, bin aber wenige Kilometer von Löhne entfernt aufgewachsen und habe daher ein Urvertrauen in ostwestfälisches Handwerk und Unternehmertum.
Mit dem Unternehmen Smart House haben wir gute Erfahrungen gemacht. Bei der Entscheidungsfindung für die Einzelheiten wurden wir gut unterstützt, auch wenn wir das Verfahren manchmal als etwas hemdsärmelig erlebt haben. Die Preispolitik finde ich fair. Ich habe das bezahlt, was ich bestellt habe. Es wurde auch in der vereinbarten Frist fertiggestellt. Ein weiterer wichtiger Punkt ist: Auch bei Problemen und Meinungsverschiedenheiten zeigte unser jeweiliger Ansprechpartner stets die Haltung: Wir finden gemeinsam eine Lösung, die beiden Seiten gerecht wird. Diesen partnerschaftliche Umgang mit dem Kunden haben wir auf allen Ebenen bis hin zur Geschäftsführung erlebt - eine gute Erfahrung.
Doch unsere Smart House-Geschichte hat auch eine unglückliche Phase, die Verzögerung der Auslieferung. Wegen Bauarbeiten an verschiedensten Straßenabschnitten verzögerte sich der Transport um mehrere Monate. Aber jetzt ist es da!
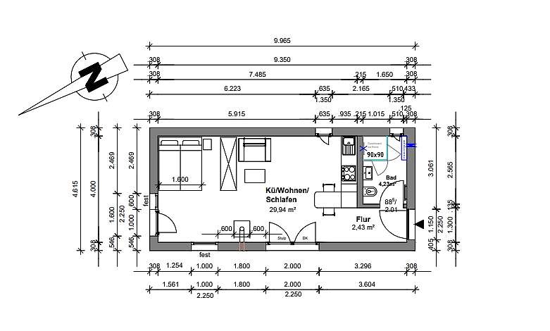
Bisher konnten wir nur wenig Zeit in unserem neuen Haus verbringen und sind noch in einer frühen Phase der Besiedlung eines neuen, schönen Lebensraums. Das Haus ist klein – ca. 37 m² Wohnfläche –, und doch wirkt es dank großer Fensterflächen großzügig. Man fühlt sich dank einer guten Dämmung geschützt. Ein Thema ist die Wärme an warmen Sommertagen. Hier müssen wir bis zum nächsten Sommer an Möglichkeiten zur Verschattung und eventuell zur Klimatisierung arbeiten. Das Raumklima ist im Übrigen angenehm. Wir freuen uns über jeden Tag in unserem Ferienhaus."


Baujahr: 2024
1 x Modul-M
Wohnfläche 36,60 m²
Grundfläche 45,99 m²
Umbauter Raum 149,47 m³